Vijftig riante appartementen op een centrale plek in Roermond
De Willem Bayer
Op de hoek van de kruising van de Bredeweg en de Oranjelaan bouwen wij 50 nieuwe appartementen in het hogere segment van de sociale huur.
Centrale ligging
Deze woningen liggen heel centraal. Het centrum van Roermond en het station liggen op vijf minuten loopafstand. Het gebouw is direct gelegen tegenover het Laurentius ziekenhuis.
Groene woonomgeving
In de directe omgeving, bij de Lindelaan, ligt een groen wandelgebied.
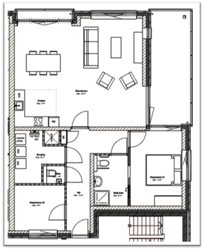
Appartementen voor alle levensfases
Elk appartement heeft twee slaapkamers en een balkon. De woningen zijn zeer ruim met afmetingen van 96 en 86 m2. Verder beschikken ze over 2 bergingen, waarvan 1 op de begane grond ligt en 1 inpandig is gecombineerd met de technische ruimte. Ook is er een lift.
Duurzame woningen
De nieuwe woningen worden zeer energiezuinig gebouwd (energielabel A++++) met individuele warmtepompen.
Appartementen
We bouwen twee verschillende woningtypes.
- Type A - 41 appartementen van 86 m²
- Type B - 9 appartementen van 96 m²
Hieronder vind je de plattegronden van de twee woningtypes:
Doelgroep
De woningen zijn geschikt voor 1 tot 3 personen vanaf 21 jaar. Hier kun je overigens wonen tot op hoge leeftijd omdat de plattegrond voldoende ruimte biedt voor zorg aan huis.
Deze appartementen worden aangeboden aan kandidaten met onderstaande inkomens (prijspeil 2026):
- 1 persoonshuishouden met een belastbaar inkomen van minimaal € 29.400 per jaar
- 2-3 persoonshuishouden met een belastbaar inkomen van minimaal € 39.925 per jaar
- Er zijn uitzonderingen voor AOW’ers mét eigen vermogen. Zij hoeven niet aan de minimale inkomensgrens te voldoen als ze een vermogen hebben van €146.011 (eenpersoonshuishouden) of €184.636 (met toeslag partner)
Huurprijs prijspeil 2026: € 885,00 voor type A en € 932,93 voor type B.
Planning
De bouw van de woningen is gestart en we verwachten de woningen eind 2026/begin 2027 op te kunnen leveren.
Woning huren?
Ben je geïnteresseerd in een van deze woningen? Zorg dan dat je staat ingeschreven in TiL (Thuis In Limburg) en dat je inschrijving compleet is.
Meer informatie vind je op
Wij verwachten deze woningen te adverteren in het derde kwartaal van 2026. Sta je ingeschreven, voldoe je aan de voorwaarden en reageer je op deze advertentie? Dan maak je kans.
Veelgestelde vragen
Heb je vragen of opmerkingen over het nieuwbouwplan? Laat het ons weten. Je kunt ons bellen: 088 6653 653 of een e-mail sturen:
We hebben al een aantal veelgestelde vragen met antwoord op onze website geplaatst. Dit vind je hier:
Aan deze projectpagina kunnen geen rechten ontleend worden.
